
因此,我们以金隅紫京叠院这个项目的K1,K2户型为例,分别来了解一下DoLong董龍设计的别墅设计师们是如何根据不同的户型来进行采光设计的吧。

位于江北老山,依山傍水的金隅·紫京叠院
1
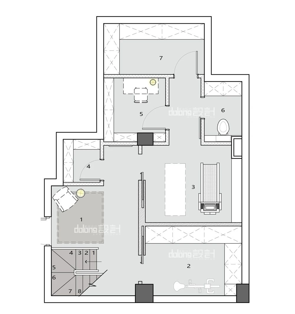
K1户型采光方案解析
>>>原始结构采光分析
1 K1户型总共三层,原始结构的负一层是错层关系,空间光线不足,通风不足,只能通过天井位置的两个窗户把自然光引进来。但自然采光的范围从窗外投射进来经过漫反射,仍然照不到离窗较远的区域,部分区域白天仍然需要辅助以局部灯光照明。而且负一层的层高达4.8m,有的业主会选择将空间分层,这导致底层空间的采光更是微乎其微。

K1户型原始采光示意图(立面)

负一层采光不足,只有这两扇窗
2 楼梯位置由于空间过于狭小,位置处于三面靠墙无窗位置,采光偏弱。

楼梯位置采光严重不足
3 紫金叠院楼间距离优质,自然采光充沛,再加上K1下叠户型窗户采光面较大,晴朗天气白天所有卧房光照充足,开间足够大,不借助通风设备能自然通风。

楼房间距大,自然光充足
>>>户型采光方案解析
负一层解析方案①:对于负一楼采光这个痛点问题,DoLong董龙设计的设计师通过部分浇筑楼板,地下两层采用分光处理的方式,不但使室内采光量达到最大化,而且空间也得到充足的利用。
充分利用光线的折射原理,使得入室光得到最大限度的使用
负一层解析方案②:负一层原有的挑高空间,做了隔层,除了增加储藏收纳的空间之余,把光线最足的地方留给了一家人使用频繁的活动空间,同时一家人进出的门厅,利用挑空空间,把自然光引下来,门厅既舒适,采光也比较充足。

负一层平面布局图
负二层解析方案: 保证了负一层的舒适,那同时负二层的大部分空间层高就会受限制,而健身房里采用玻璃材质作为媒介,通过玻璃材质拓展了空间的视觉,给予了空间的宽敞。

负二层平面布局图
一层解析方案: 一层楼梯区域墙体打开,增加通透感,使楼梯融入室内采光的一个区域。

一层原始结构图 一层平面布局图
二层解析方案:二层一上来的空间区域作为开敞式的家庭厅来使用,增强楼梯区域的采光。

二层原始结构图 二层平面布局图
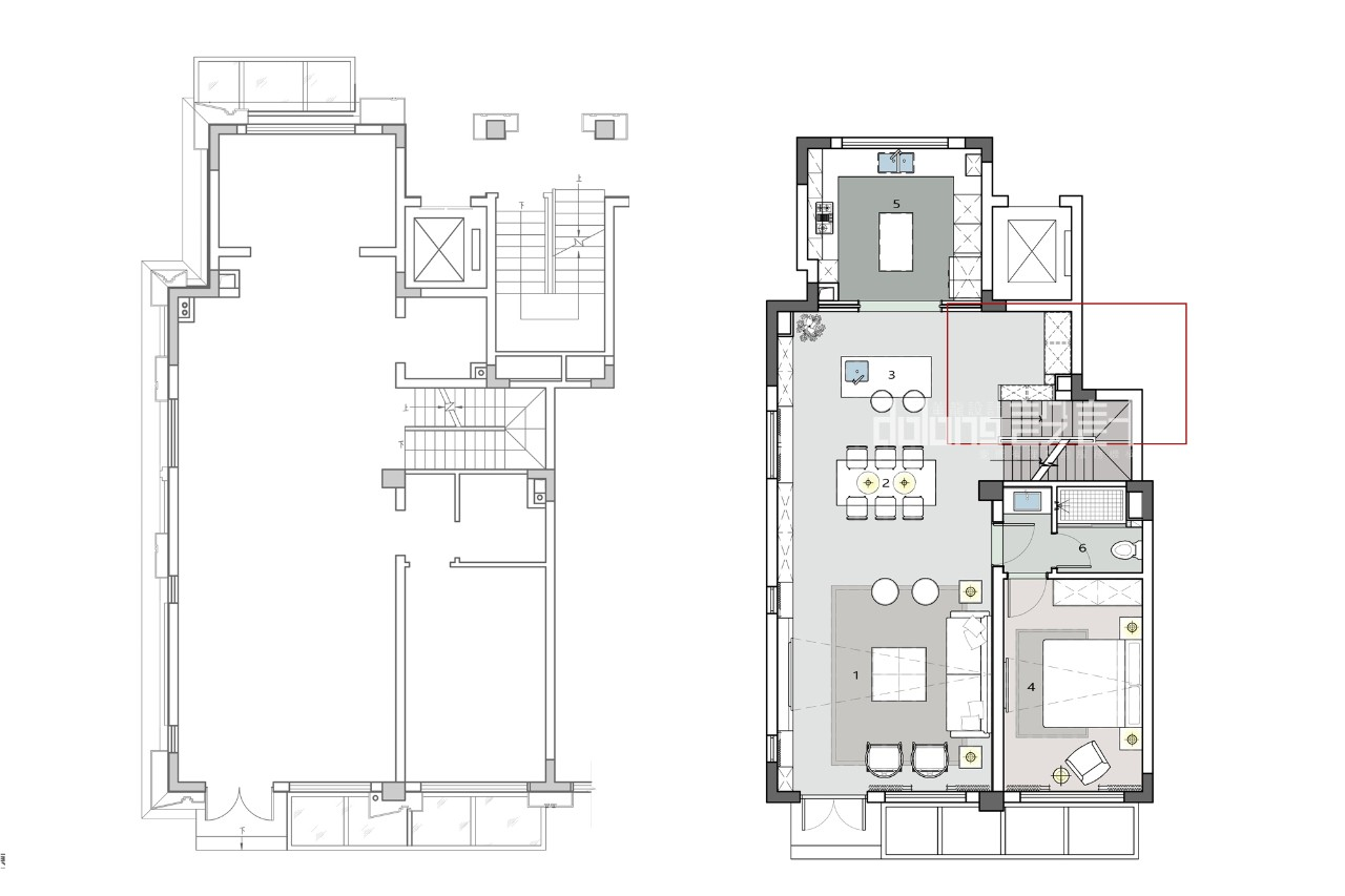
2
K2户型采光方案解析
>>>原始结构采光分析
1 紫金叠院楼间距离优质,自然采光充沛,再加上K2上叠户型整体方正,窗户开间面大,晴朗天气白天所有卧房光照充足。房间里摆放基本尺寸家具,不妨碍人走动,不借助通风设备能自然通风。

窗户开间面大,自然采光充沛

南北进深过长,局部区域采光不足

楼梯采光严重不足
三楼和四楼的暗卫生间是采光方案的一大重点
>>>户型采光方案解析
方案解析①:楼梯·区域墙体打开,增加通透感,使楼梯融入室内采光的一个区域。老人房卫生间干湿分离,经常使用的台盆区域与外空间整体相结合,增加采光。

三层原始结构图 三层平面布局图


以上就是DoLong董龍设计的优秀设计师们
对此次金隅紫京叠院K1及K2户型关于采光方面的思路解析
同时,设计师们也针对此项目的其他户型
设计了完整的优化方案
此次DoLong董龍设计也针对金隅紫京叠院
推出了一系列的活动
欢迎各位业主们随时来与我们交流、咨询


南京DoLong董龍设计
成立于2008年
设计为本 工程直营
将客户满意度作为唯一标准
服务过南京2000多户中高端小区业主
其中60%为河西板块小区
包括星雨华府 苏宁睿城 保利香槟
五矿崇文金城 正荣润峯 海玥名都等
客户满意度100%
超过80%家装合作来自口碑
累计实景作品超300套
获国内外重要设计奖项超100余座
公司荣誉(部分)
2019国际空间设计大奖-艾特奖最佳住宅建筑设计奖
2019中国设计力青年榜中国杰出青年设计师奖
2019中国室内装饰协会金腾奖全国100强
2019芒果奖中国别墅优胜奖
2018蒂森克虏伯别墅设计师大赛新锐设计师奖
2018金堂奖中国室内设计年度优秀住宅公寓设计
2016第七届筑巢奖最佳公寓户型设计奖
2015国际空间设计大奖-艾特奖最佳公寓设计奖
2014江苏省室内设计学会永隆·星空杯住宅空间工程类金奖
2013金堂奖中国室内设计年度优秀餐饮空间设计
2012金堂奖中国室内设计年度优秀别墅设计
2011金堂奖中国室内设计年度优秀住宅公寓设计
2010第一届中国国际空间环境艺术设计大赛筑巢奖住宅空间类金奖
2010第一届金堂奖中国室内设计年度住宅公寓设计金奖
2009中国室内空间环境艺术设计大赛住宅空间三等奖
我们是
一群有理想的年轻人
一直在努力做一间有理想的服务机构
如果您对您的新家
有更多的期许
欢迎与我们联系
感受一次不一样的家装体验
DoLong董龍设计公众号

扫描二维码了解更多优秀案例
设计咨询

咨询热线:13913913797(微信同号)
400-799-6869
南京市建邺区泰山路8号舜天产业园内主楼一楼