项目
解析
Project Analysis
项目地点:江苏·常州
项目类型:平层
设计风格:北欧极简
功能布置:客厅、餐厅、主卧、书房、中西厨、晾晒空间
DoLong董龍设计
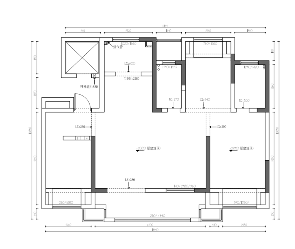
原始结构
ORIGINAL STRUCTURE

▼户型结构初分析
原始户型南北不够通透,采光也不是很好
屋主的改进需求:
1.采光充足 2.增加西厨 3.储物功能强 4.独立书房
我的理想家
MY IDEAL HOME
业主从小受艺术熏陶,对于家居生活有自己独特的理解与追求。这间房子是为父母安居而购入的,虽然主要不是自己居住,但是对于整体风格、舒适性等多方面的要求并没有丝毫降低,希望父母能够在新家享受到自在愉悦的生活。
在风格的设定上,业主毫不纠结,非常笃定地告诉设计师,她自己究竟想要什么样的效果。他钟爱现代简约与北欧风融合的风格,在与设计师初步交涉之后,决定以北欧极简为主调来完成这个作品。
设计灵感
DESIGN INSPIRATION
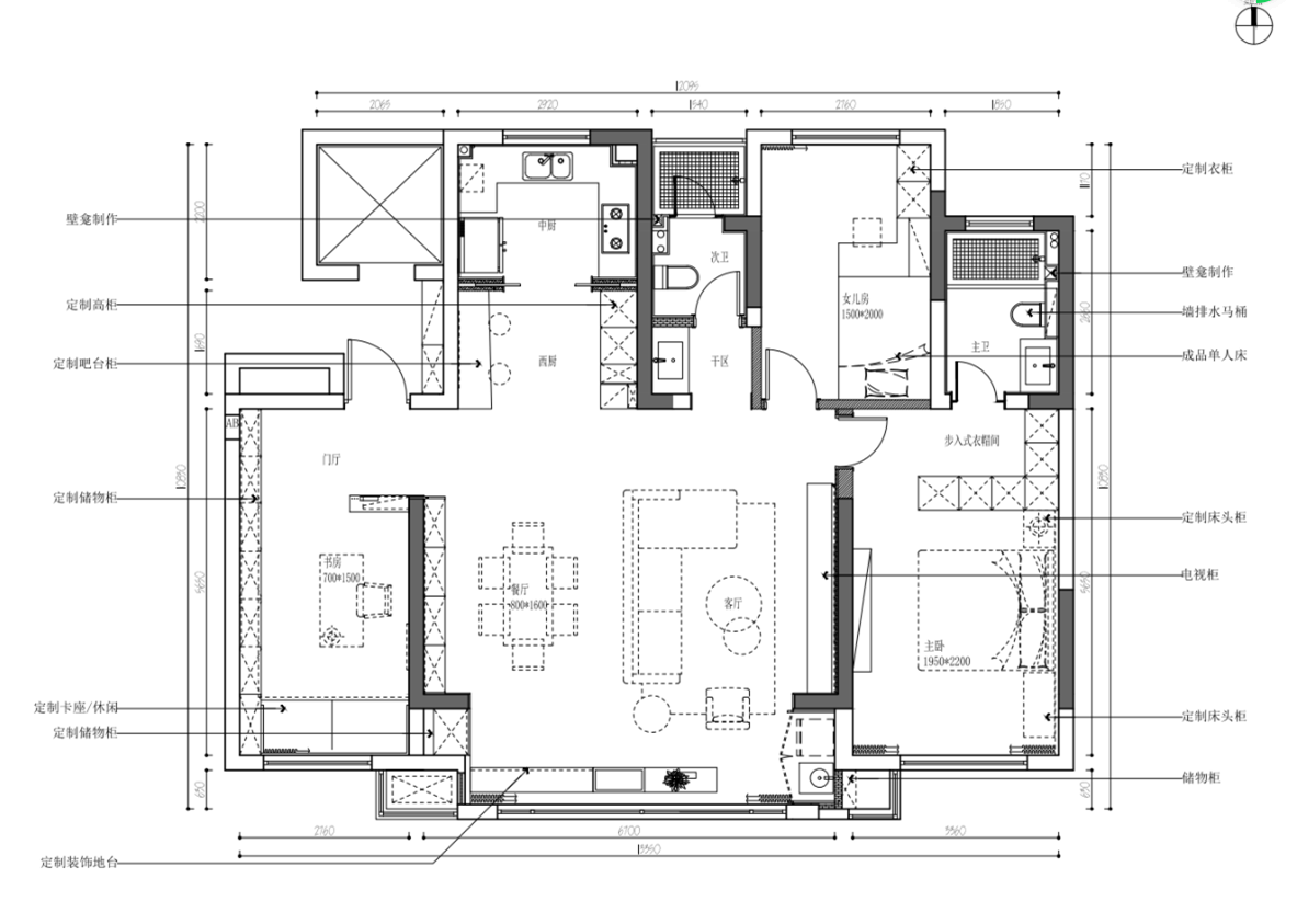
如今开放式设计被越来越多的家庭所青睐,例如有开放式厨房,开放式书房等等。通过开放式的一体设计,让整个家居看上去空间更加宽敞,同时各个功能区又划分清晰。

顺着户型特点而设计的客餐厅,让人眼前一亮。半边的墙壁保留,利用沙发、餐桌做隔断,形成两个独立的空间。整个家居流露出北欧简约的实用风。

从客厅看向餐厅方向,由于采用客餐厅一体设计,空间显得宽阔舒适。整体看起来隔而不断,视觉上给人以纵深感。

餐厅飘窗简约改造,窗台可以铺上软垫,就是可供人休闲的小空间。阳光明媚的日子,可在窗台边喝茶谈笑。

独立的书房空间,朝南采光通风俱佳。一个安静又不失格调的办公学习环境,能够让茶余饭后的生活增添一些品味。


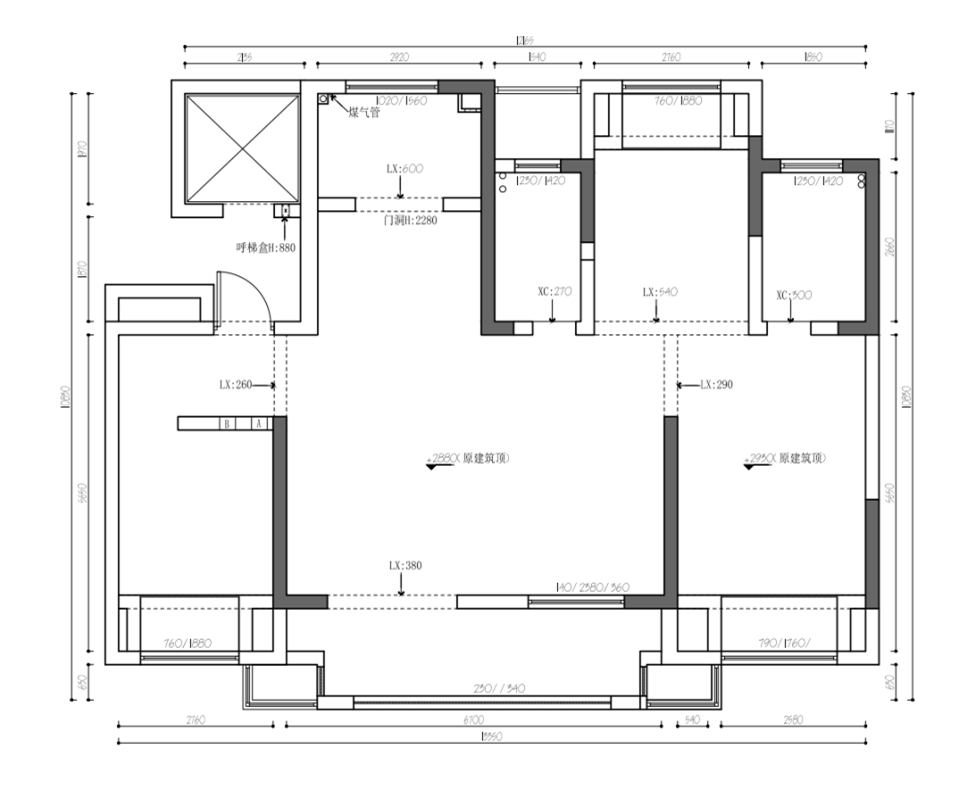
平面方案
PLANE SCHEME

▲原始结构 VS 设计方案▼


设计师 王建涛
首席设计师
工作年限:11年
工作经历:
2009年4月-2010年4月 某设计公司实习设计师
2010年4月-2012年4月 厚翰堂工程设计公司绘图设计师
2012年4月至今 DoLong董龍设计丨精装优品首席设计师
设计理念:
持之以恒的学习是设计的来源,责任感是设计的原则,而灵感是设计的升华,将设计融于人性,将家居带入悠闲自在的情境。
代表作品:
《午后蓝山》《女也雅室》《乐冉与辞》《知吾》《浅山小憩》《初现》
所获荣誉:
2016年江苏省室内设计大赛“星空间杯”优秀奖《午后蓝山》
2017年18频道报导《乐冉与辞》
2018江苏省室内设计大赛“星空间杯”银奖《女也雅室》
2019-2020年度40UNDER40(南京)设计杰出青年
2019芒果奖晋级《知·吾》
2020国际空间设计大奖艾特奖-优秀奖《初·现》
服务项目:
复地御钟山,银城林茵里,景枫你山,法兰谷,星语华府,长江路九号,世茂外滩,远洋国际,雅居乐滨江国际,九龙湖别墅,保利香槟等