项目基本资料 项目名称:致可爱的你 工程地址:保利紫晶山 项目面积:189平 户型结构:四室两厅两卫 设计风格:北欧 合作模式:全案托管 主要材料:锐驰家具、蜜蜂瓷砖、科勒洁具、志邦橱柜、德国帕诺地板、窄框进口吊柜移门、Dolong董龍陈设、想天照明、大秦灰泥 竣工时间:2018/11 摄 影:ingallery

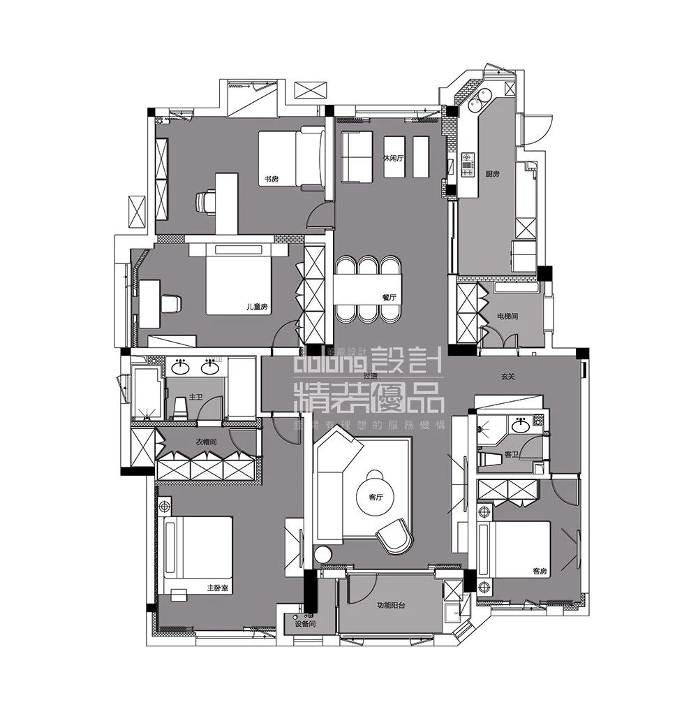
▲室内平面布置图
【设计说明】
从今天起,我们将开始一段新的生活,一个将被岁月写成的漫长的故事,婉转成歌,绵延不息。学习给欲望做减法,坚持一份清醒与自持,正视自己的需求,更正视自己的拥有,素衣清欢,生活越素简,内心越丰盈。
家的设计,遵循着内心追求的断舍离,撇弃了所有刻意而为的硬装手法,像一颗经过埋藏的种子,自然成长、生机勃勃。走进,一阵清淡脱俗的盐系风,简单自然、柔和而舒适。打通餐厅、阳台,公共空间形成了通透的大开间布局,原本的北阳台被纳入了室内,成为了家里的“第二厅”,这个围合的空间更适宜面对面的交流。两杯热咖啡,闲谈人生,寻常幸福的样子。
整个空间用不同明度的粉、灰,加之点缀其间的淡蓝和天然绿植装饰,舍弃了所有多余的装饰品,改用实用的生活用品装点。意大利进口的蜜蜂木纹质感的瓷砖满铺,清爽素净,墙面使用了肌理感很强的灰泥,既解决了小区的墙面渗漏的隐患,在大空间内相比乳胶漆又有着更强的塑造能力。
卧室的飘窗延伸部分,造成背景墙重心不对称,为解决这个问题,我们选择了一款同样不对称的榻榻米床,进一步加深这种不对称感。延伸部分的背景墙装饰选用了实用的莫兰迪色装饰架,调整了失衡感。
是的,生活的意义在于生活本身,不在我们如何去描写它。我热爱它原本的样子,就像热爱你一样。












