从明天起
和每一个亲人通信
告诉他们我的幸福
那幸福的闪电告诉我的
我将告诉每一个人
——海子

H·O·M·E
项目名称:适 · 意
项目地址:保利紫晶山
项目面积:338㎡
户型结构:复式
设计风格:现代简约
合作模式:半包
主要材料:墙纸、硬包、木饰面、灰泥、艺术漆、钢结构
竣工时间:2020/9
摄影:合光

我常常杞人忧天地怀疑现代人是否会在未来的某天,把自己过成独居生物,家庭与家庭之间毫无交流,但又时常遇见这样的业主,温文尔雅,热情好客,喜欢在家中定期举行聚会,家人之间、家人与亲戚朋友的情感被牢牢地维系。
生活可以平淡,但不能失去温度。而温度的保持,就是依靠与家人、与亲朋好友坐在一起,说出一句又一句的看似无聊但真诚温暖的日常闲谈。
本案的业主便是上述之人,致力于将身边人仅仅联系在一起。所以这次装修设计,他们希望把家打造成一个现代简约、适宜多人居住和聚会的生活空间。

木色到咖啡色的平稳过渡,将生活在缓慢变化的禅意渗透进心灵,与诗人夏男的诗句“我想变成天边的那朵白云,用尽整日晴天,只从左边,移到右边。”异曲同工。两种颜色相互呼应,柔和的亲和力和盘托出。
为了促进家人抑或是亲戚朋友之间的情感交流,设计师坚持开放性的简约空间设置,并尽可能地使得空间之间产生互动。要让每个参与家庭生活的人感受到浓浓的人情味。
光线温柔浪漫地打进房间,在触碰人和饰品之后,又在大面积的米白色墙体上反射,散落空间,采光效果更佳温暖人心。光影交织,似水一般清澈,如镜一般明亮。

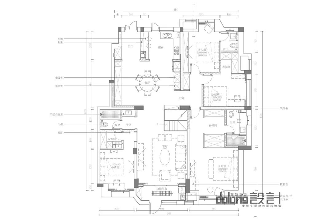
▲一层原始户型图 VS 一层平面布置图▼

户型为一层和地下室组成的复式型,一层主要以家庭生活为主,共4个房间。公共区域采用开放式布局,极大地增强了室内通透感。
原楼梯的位置改为公共卫生间。原楼梯旁的卫生间划为女儿房的衣帽间,满足女孩子大的储物需求及生活的便利。通往主卧的动线北移,扩大了主卧室面积及功能的调整增加一定的舒适性,考虑到儿子年龄尚小,为了方便照顾他,便把他的房间设置得紧邻老人房和主卧室。

▲负一层原始户型图 VS 负一层平面布置图▼

地下室以生活起居交流为主,这里与以往定义的地下室有所不同,公共区域采光非常好。唯一不足的就是卫生间的排水问题,提升泵解决了这一难题。
楼上楼下同时保留2个功能生活阳台,也为生活增加很多的便利性。不同功能设计,带来不同的动线,只为让业主的生活方式更具多样性。



◻️
Kitchen space| 餐厨
∨
开放性的餐厨空间是增加亲人间互动的择优选择
厨房与餐桌椅在颜色上的趋近
突出了空间的整体感与仪式感
围绕餐桌的不同立面各有不同的色彩
白色、咖啡棕、大理石灰
对比鲜明,氛围活泼,充满了立体设计感
当视线在就餐时不断变换,面向的色彩就不同
在一定程度上起到刺激食欲的作用

餐厅空间非常宽敞,桌椅讲究得处于中心位置
与厨房、客厅保持着特别灵活方便的连通
充满着对儿女与老人的人文关怀

◻️
Bedroom| 卧室
∨
木色地板,棕色背景墙,白色吊顶
从空间底部逐步过渡到顶部,层次分明
床品的选择特别现代简约
床高较短,贴近地面的选择往往在
业主的潜意识中建立某种安全感
