
家,一个人的时候,安静而丰盛
两个人时,相濡以沫,温暖而踏实
三个人时,相助相守,朴素而温馨
当人生进入成熟阶段,幸福不再是物质也不是目标
而是一种心态
清晨的玻璃晴朗,午后的橘子辉煌
都是长久的幸福感

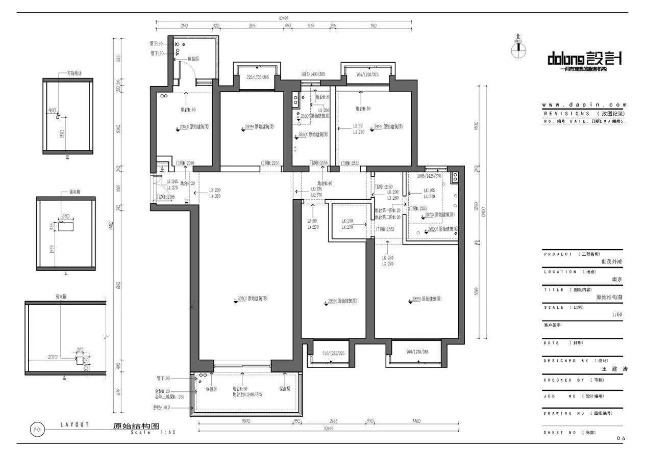
■ 项目名称:初·现
■ 项目地址:世茂外滩新城
■ 项目面积:170平
■ 户型结构:平层
■ 设计风格:现代简约
■ 主要材料:艺术涂料、亚光不锈钢、木栅格、浅灰色肤雅板
设计思考

设计勤于沟通、重于大局、微于细节。
初次见面,业主希望完成原木系极简风,但在深入沟通后,设计师发掘客户更钟情黑白灰,在与业主共识后果断调整方案。
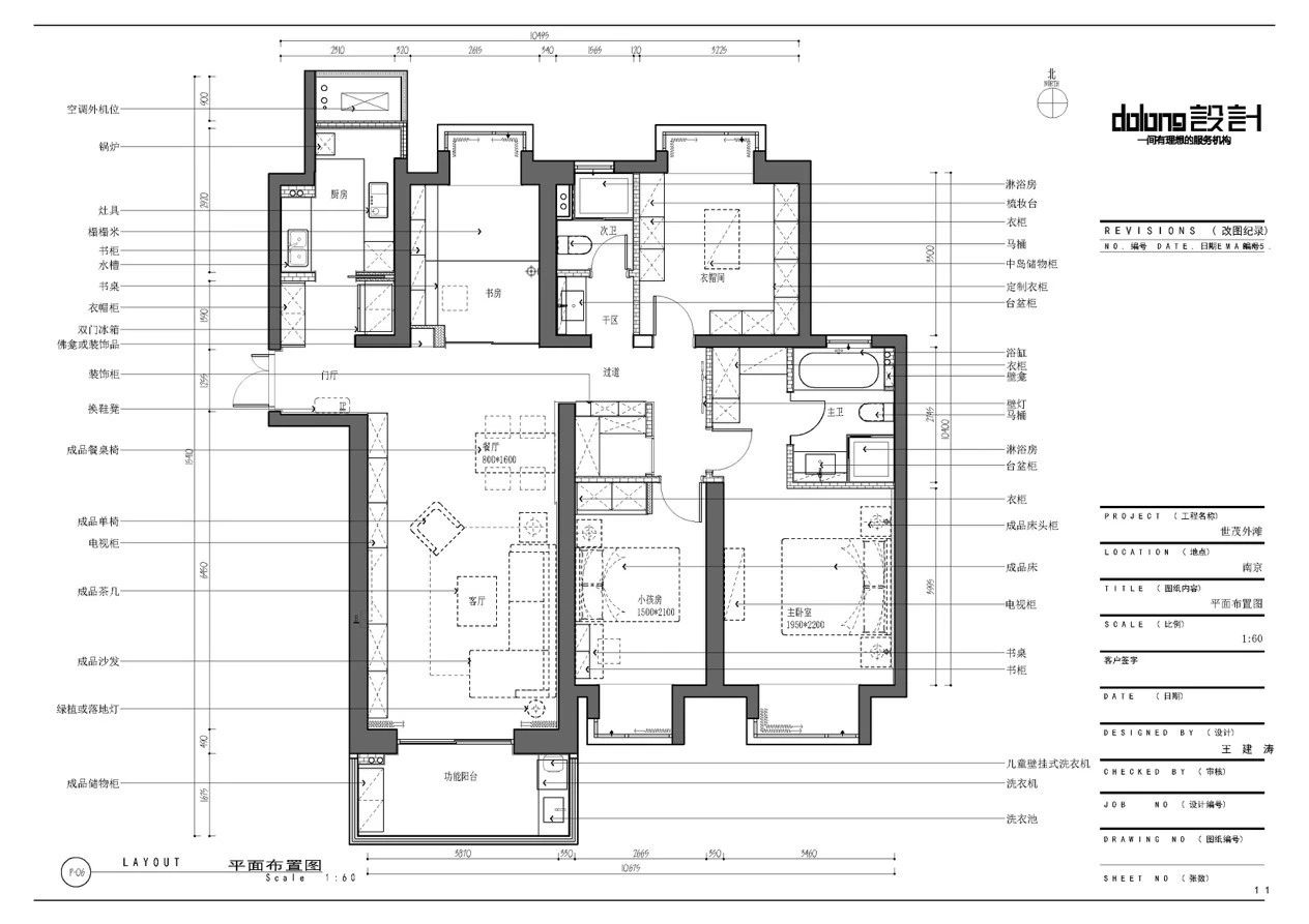
本案业主是三口之家,设计师保留两卧格局,北面的两室分别规划为业主亟需的独立衣帽间和开放式书房。局部运用推延切割的手法,锱铢必较,实现空间的重叠共用和最大平效。套间改造利用空间置换的想象力,相同面积下,凭空争取了一个储物间,同时解决了入户门对门的问题。

静谧的黑白灰基调,含而不露,带着幽幽的意境之美,现代感十足。极简抽象的装饰吊钟,不拘一格,充满设计感和现代文艺气息。

光源的设计为室内打造出美妙舒适的氛围,除了顶部的照明光外,设计师还运用了不同的可调节的装饰光源、氛围灯带和阅读灯光补充,保证空间照明的同时,令光影效果更加丰富、错落有致。

为业主量身定制的整面储物壁柜和展示壁橱,具有超大储物容量,可以满足业主多类物品的收纳和展示。深色壁柜规划了不同规格的隔断、贴心的照明灯带,既实用又美观。

餐厅以雅黑的木栅格作为软隔断与客厅区域加以区分,延伸流畅的线条,优雅低调,呈现出品位家居的生活质感。


原本封闭的次卧改造成半开放的独立书房,设计师用透明的玻璃移门取代了冰冷的砖墙,令空间格局更加通透开放,同时也有效改善了餐厅和走道的采光条件。精致纤细的黑色不锈钢包边线条,视觉更加轻盈,品质更加高级。


改造后的主卧套间,解决了入户门正对主卧门的尴尬,确保了卧室的私密性。此外,设计师选择了一组造型别致的壁灯,既起到不俗的装饰效果,又补充了户型居中走道采光不足的问题。

为了缓解门厅不可逆的结构大梁造成入户走廊的压抑感,设计师分别在顶面立面设计和装饰上下足功夫。特殊定制的木栅格艺术风口,一直延伸至走道尽头,与餐厅立面呼应,增加了空间的视觉延伸感。

墙面浅灰色木饰面设计是客厅储物柜饰面整体统一的延贯,简约时尚的抽缝线条,提升了空间的视觉高度。特殊的装饰画面,空间中的光影转折、起承转合,仿佛一面镜子,无形中加深了门厅空间的纵深感。


书房的榻榻米兼具临时休息和储物的多种功能需求,延伸到底的定制书柜和工作台面实用时尚,同时满足业主坐卧阅读的不同需求,为业主营造了一个舒适惬意的休闲办公空间。


卧室背景墙卧立的L型设计,稳重优雅不失新意,与餐厅的立面呼应成趣。




人性化的家居设计见于细节,设计师在卫生间的壁龛和浴缸底部都增加了照明灯带,提升空间美感的同时,也方便业主卫浴时取用、打扫以及使用安全。



南京DoLong董龍设计
成立于2008年
设计为本 工程直营
将客户满意度作为唯一标准
服务过南京2000多户中高端小区业主
其中60%为河西板块小区
包括星雨华府 苏宁睿城 保利香槟
五矿崇文金城 正荣润峯 海玥名都等
客户满意度100%
超过80%家装合作来自口碑
累计实景作品超300套
获国内外重要设计奖项超100余座
公司荣誉(部分)
2019国际空间设计大奖-艾特奖最佳住宅建筑设计奖
2019中国设计力青年榜中国杰出青年设计师奖
2019中国室内装饰协会金腾奖全国100强
2019芒果奖中国别墅优胜奖
2018蒂森克