
H·O·M·E
项目名称:御·境
项目地址:雅居乐藏龙御景
项目面积:260㎡
户型结构:5室2厅
设计风格:现代轻奢
合作模式:半包
主要材料:染色木皮、古铜拉丝金属、皮质硬包、意大利灰大理石
竣工时间:2020/11
摄影:ingallery

这是一个高层住宅的大平层项目,位于南京江宁区。男业主从事城市规划工作,女业主则是银行的管理人员,由于工作都具有严谨、准确、品质要求高等特点,所以他们对自己的家也有着同样的高品质规划需求。
他们有一个正在上小学的儿子,非常可爱聪明,夫妻二人对他疼爱有加。他们希望新家宽敞明亮,舒适大方,低调而不失华贵,好让儿子每天都能享受美好的童年时光。

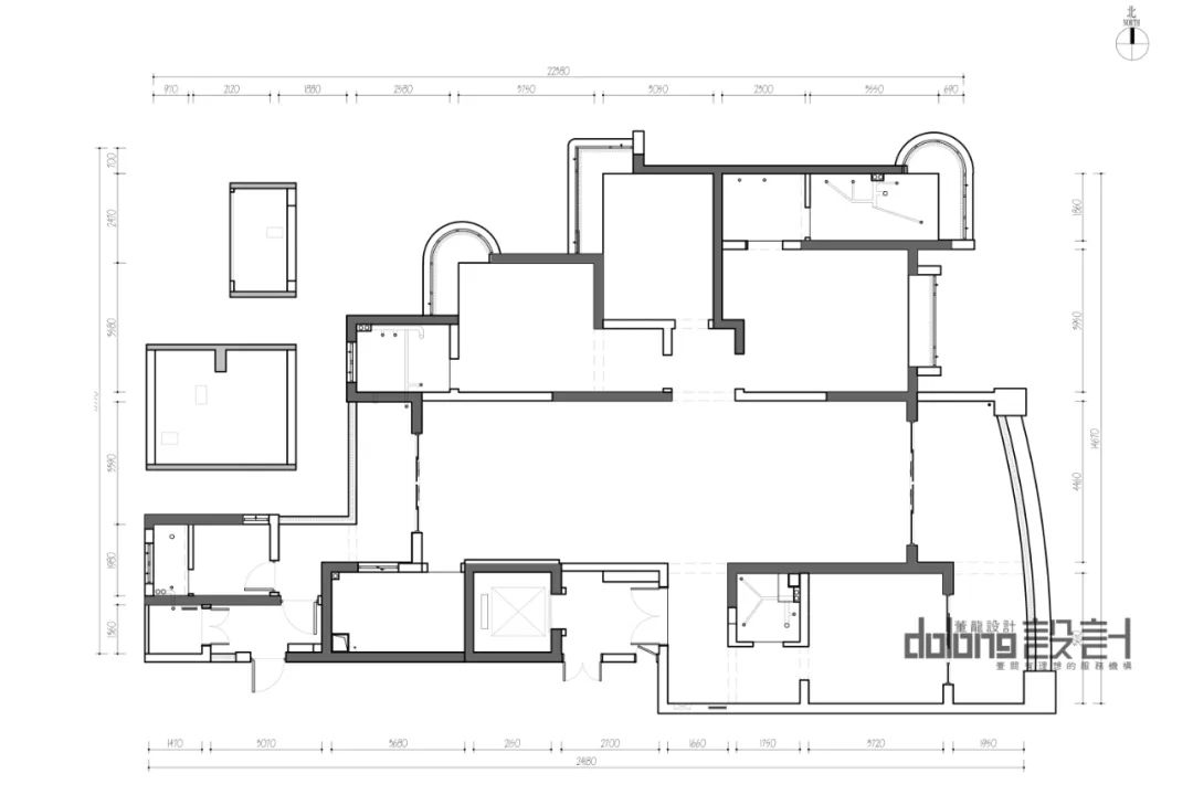
▲原始结构图 VS 平面布置图▼

布局上,业主想要将空间利用率尽可能地增大,设计师便将项目自身的优点进一步放大,把南北阳台的一部分纳入客餐厅的公共区间内,最终使得客餐厅的纵深感更加突出。
业主对于厨房的最大的预期是功能齐全,可以做丰富多彩的食物,以便于邀请朋友亲戚来到家里做客,所以餐厨区域增加了西厨和导台的功能区,增加了新的使用体验。
从入户大门进入
首先映入眼帘的是一面镜面的绿色圆盘
玄关台用白色的石材定制而成
石材的分割线
和墙面的硬包分割线巧妙的重叠
高级的定制感油然而生

设计师用温润的染色胡桃木和意大利灰石材
构建了这个宽敞大气的公共空间
沙发背景墙上,一幅充满质感的墨绿艺术画
像少女般亭亭玉立,吸引看客的眼球
与相同颜色的两张单人座椅相互呼应
点睛之笔又如此和谐


大理石电视背景墙上
向内倾斜打出几处高低不同的艺术灯
先锋又时尚
整个墙面不再单调与无聊
给看它的人儿带来更有趣的视觉体验

◻️
Dining Room | 餐厅
∨
一面背景墙是木质打造的凹凸立体造型
时尚大方
此区域的踢脚线一改传统外凸造型
而是内嵌式


另一面背景墙上挂着八面
内涵不尽相同的小圆盘装饰品
顶面排列射灯
在晚上灯光打开的时候
整面墙使得餐厅的艺术气质彰显得淋漓尽致

西厨和导台的增加使得餐厅功能丰富化
同时还可作为中厨与餐厅的连接点
西厨简约方便,移动自由
增加了家人、朋友之间的互动性

◻️
Bedroom| 卧室
∨
主人房设计师将睡卧区,化妆区,衣帽区
和盥洗区进行了合理的区域布置
实用而美观


胡桃木色搭配灰色和白色
使得空间不再无聊,而是充满活力
顶面金边吊顶灯给业主营造了
一个浪漫且梦幻的视觉场景
对话设计师04
1、装修过程花了多长时间?
设计师:装修时长为10个月。
2、对平面布局做了哪些优化改动,为什么?
设计师:设计的时候,把南北阳台的一部分纳入客餐厅的公共区间内。因为被采纳的阳台本身可以被更好地利用,公共区域的面积可以增大,视觉也可以更加宽广。
3、你对这套作品最满意的地方在哪里,为什么?
设计师:最满意的点在于客餐厅的最后表现,整个跨度很长的空间合理地划分为西厨、餐厅、客厅、休闲阳台。界面统一而多元,细节变化丰富。