用刀尖入水,用显微镜看雪
就算反复如此
还是忍不住问一问,你数过天上的星星吗
——毕赣

H·O·M·E
项目名称:梦幻Ballet
项目地址:高科荣境
项目面积:178平米
户型结构:4室2厅
设计风格:现代美式
合作模式:全案托管
主要材料:肤感烤漆墙板、古铜拉丝金属、意大利艺术涂料
竣工时间:2020/12
摄影:ingallery

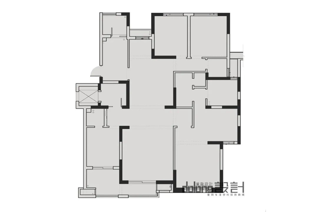
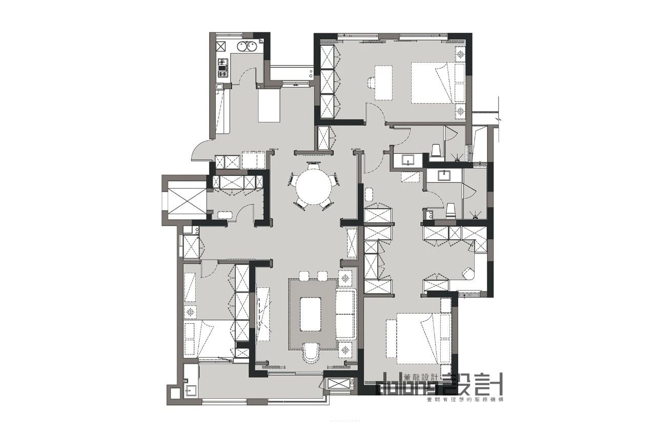
▲一层原始结构图 VS 一层平面布置图▼

在此项目中,客厅区域的动线结构比较松散,设计师对此进行了合理的调整,再将两个睡眠套间各自规整,便得到了一个仪式感十足的舞蹈区域以及通透的公共活动空间。另外,加入具有秩序感的多个平口套线后,空间显得气势十足。
主卧套间里,增加了女业主理想的围合式衣帽间,足足占据套间三分之一的面积,是容纳了梳妆台、超多衣柜,以及洗浴的享受型空间。
通过餐厅两个对称的门洞,将空间因地制宜地划分成睡眠、活动、用餐的三条生活动线。



客厅采取轴线对称的布局方式,赋予了空间庄重的仪式感。白色色系的大面积运用,使得空间更为柔和。
局部布置重色家具,如黑色金属材质边几和影木木皮的电视柜。在它们的点缀下,空间更显宁静。


Caracole 的单椅,配以布艺的质感,坐起来更加放松惬意。客厅也是业主回到家、回卧房之前短暂休息的角落。
◻️
Dining Room | 餐厅:沉稳的颜色与材质
∨
餐厅的整体氛围相对于客厅会更加端庄,运用更多低饱和度的重色,在整体柔和的色彩氛围中,增加了更多的层次。

细腻通透的太阳花银镜、蕾丝雕花水晶吊灯搭配手工金箔的餐桌、与客厅呼应的黑色餐椅、以及更加简约干练的顶面线条等等不同的材质,在颜色丰富的餐厅里呈现出和谐的整体感。
同时对于时常进行教学录制的业主来说,这样的材质组合也更易保持洁净秩序的状态。
◻️
Master Bedroom| 主卧:在一缕阳光中迎来早晨
∨

◻️
Daughter's Bedroom| 女儿房:少女的粉色世界
∨


女儿房选用了一款织物壁纸,淡淡的烟灰褐色,带着朦胧纱线的印记,呈现出自然的朴质与美好,给人轻松愉悦的美妙体验。
低饱和度彩色的Caracole床给空间增添了更多色彩层次。天花板上的温柔之光,透过带着自然光泽的贝母倾泻而下,为这简洁的卧室增加了几分古典的优雅和少女的梦幻。