“色彩架构了人类世界的缤纷和完整,是设计的起始。
它的奇妙在于它带来的千万种可能。”——题记

H·O·M·E
项目名称:灰·境
项目地址:银城·林茵里
项目面积:260㎡
户型结构:叠墅设计风格:现代简约合作模式:半包主要材料:高级灰木饰面、栅格板、岩板、进口饰面板等主要品牌:蜜蜂瓷砖、锐驰、帕诺地板、尼克木作、汉斯格雅 丝涟床垫、志邦厨柜、唯宝、阿基米德等竣工时间:2020/10摄影:EMMA
业主说:让笑声划过每个角落。01
这是位于银城林茵里的一套住宅设计项目。业主五口之家,言笑晏晏,吉祥止止,对生活和美学都有着独到的追求与理解。他们希望自己的家在自然光线和色彩搭配上交相辉映,每一个角落都能恰到好处地承接欢声笑语的实时发生,总体呈现一个质朴却又时尚的现代风格。
空间说:整合资源,提高利用率。02
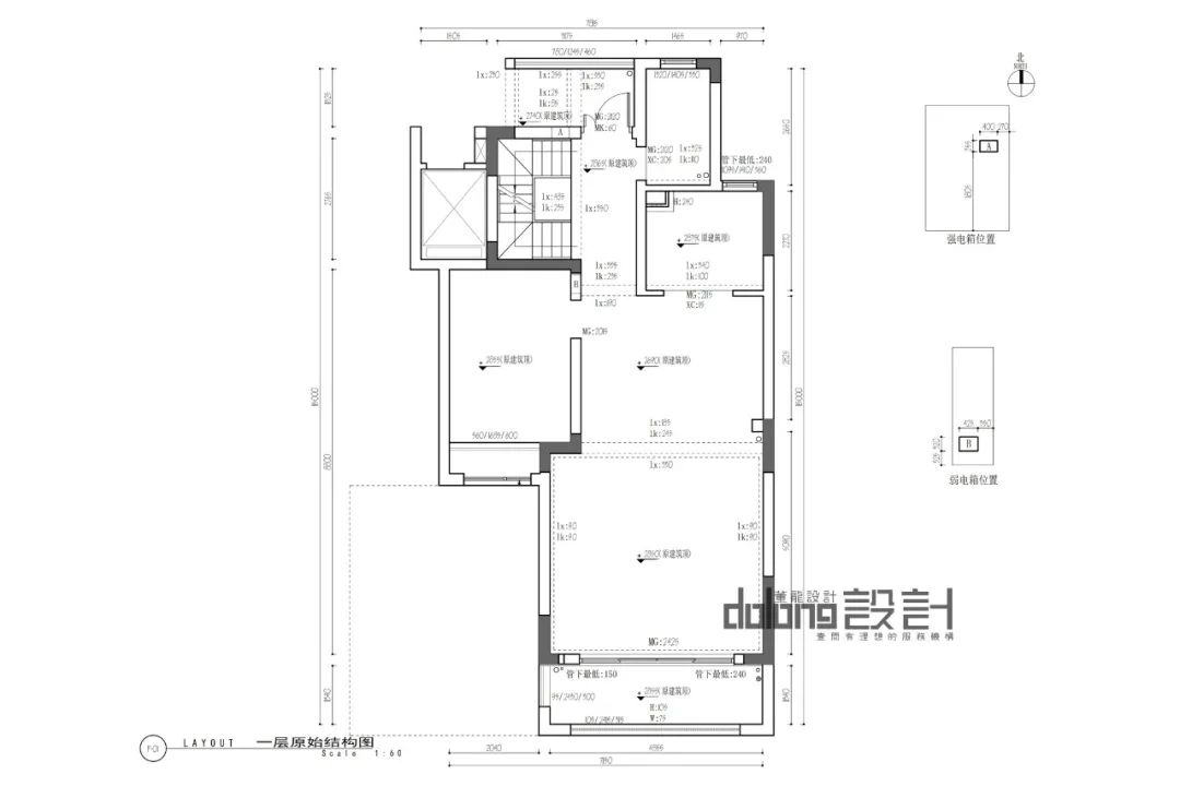
一层原始结构图
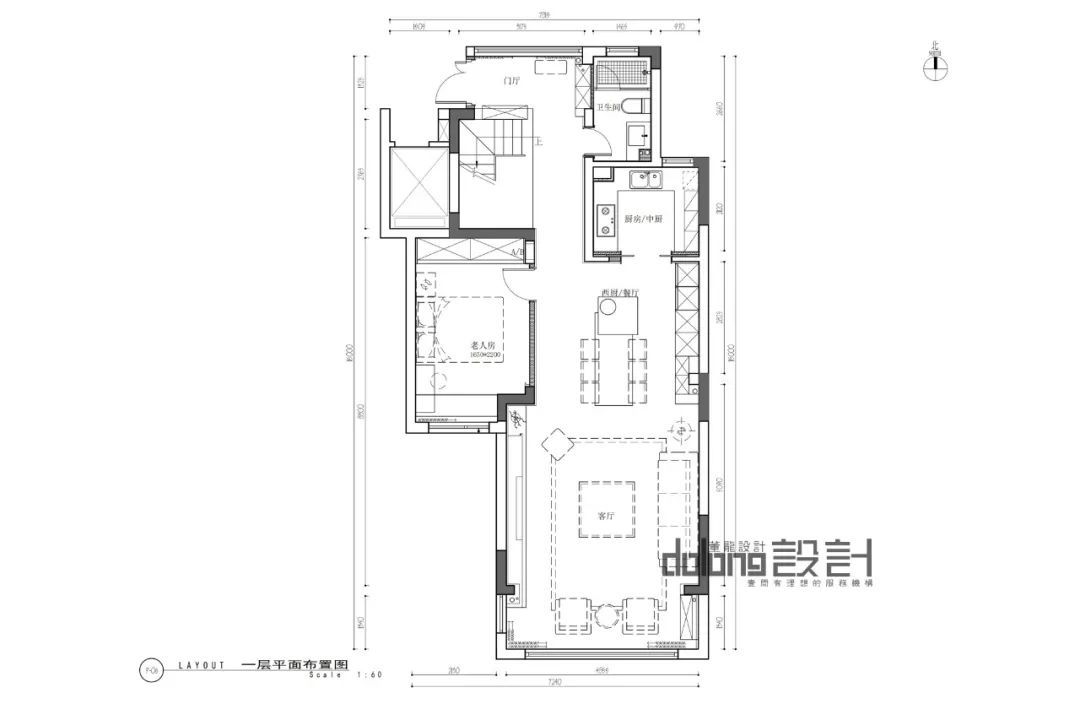
一层平面布置图
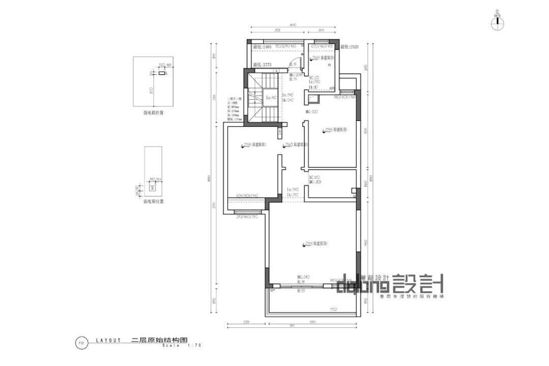
二层原始结构图
二层平面布置图
三层原始结构图
三层平面布置图

新家说:无声中展示吸引力。03
Entrance|玄关∨ 


原有入户门为南北方向进门动线拥挤且无玄关无储物空间为了改善这一状况设计师将赠送门厅纳入到室内空间入户门改为东西方向在进门右手处增设一组换鞋柜并做了镂空设计与楼梯过道空间形成互动与视觉延伸
Living Room|客厅∨








内敛沉静的黑白灰优雅热情的暖意橙色彩的抑扬结合组成了客厅的时尚风华与轻奢韵味空间给人以静谧而沉稳的氛围感受无声中展示着惊艳的吸引力


露台被巧妙地纳入客厅使得空间最大化自然天光照亮室内电视背景得以更大向量地延伸



考究的比例和装饰性让空间疏密有致,和谐有序此外设计师针对家具与部分选材做了充分的前置工作后期落地过程中在木制颜色上同样反复打样最终做到了落地效果与图纸达到90%以上的还原
Dining Room | 餐厅∨ 
餐厅使用岛台与餐桌一体化模式不但节省空间而且具有相当实用的功能性同时两者质感统一整个餐区风格更加和谐


整面西厨柜保证了充足的储物空间烤箱蒸箱、酒柜、拉篮、零食柜等一应俱全几乎满足业主日常烹饪的所有需求



Bedroom| 卧室∨ 

拾级而上,二楼主卧采用套房设计形式包含卧室、衣帽间、卫生间为业主提供高品质的生活体验

卧室无主灯结合射灯、台灯等进行辅助照明满足业主的多种场景需求光线柔和克制,床品素约舒适营造出安然沉潜的环境情绪

橙色床体温醇感与时尚格调兼具在一室沉静中直击心底柔软处
衣帽间包含挂放区、叠放区等专用储藏空间以供业主灵活使用从细节处彰显品质生活
儿童房以清浅的粉和白为主色调轻盈灵动,充满自然童趣造型可爱的小兔子床和梳妆镜温暖而治愈浪漫梦幻之间似乎在诉说着小公主的美好世界


Kitchen | 厨房∨ 

Stairs | 楼梯∨ 
楼梯下放置一盏月亮球灯既可照明亦可端景与垂悬而下的参差小吊灯形成形体上的映衬点面之间犹如充满意趣的艺术装置

Bathroom | 洗手间∨ 

两种风格迥异的洗手间一间成熟稳重、充满内涵
一间光线明亮、温暖可爱照顾到家中每个人的喜好

携一本书于露台玻璃房中阅读
静享幽静的岁月与明媚的阳光
好不怡然自得