我必须是你近旁的一株木棉
作为树的形象和你站在一起
根,紧握在地下;叶,相触在云里
每一阵风过,我们都相互致意
——《致橡树》舒婷

H·O·M·E
项目名称:溧阳天隽半岛——逸·界
空间性质:平层/200平
设计机构:DoLong董龍设计
设计风格:现代极简
施工单位:大品大工程
全案标准:6000元/平
摄影:Ingallery
业主说:故乡——第二居所
这是一个200平的私人住宅项目,位于江苏溧阳。业主90年代初便去上海打拼,这些年早已拥有了稳定的事业,子女现在也成家立业。由于故乡的亲友众多,为了方便回来时有个惬意、舒适的第二居所居住,便购置了这套毗邻高铁站的大平层。
空间说:自然、室内设计与人更为契合
02
这个房型拥有一个L型的超大阳台,为这套房子提供了十分美丽的户外景观。设计师根据这套房子的特性以及业主的日常习惯,将原先的中厨变为休闲的棋牌室,将北阳台和餐厅组合,形成一个西厨为主的餐厨一体空间。
原先的超长阳台空间也被重组划分,美丽的窗景便同时映入客厅、主人睡卧的主卧室和儿童房,以此让自然更贴近人。设计师希望将自然、室内设计与人之间的关系组织得更为契合。
新家说:用精致的细节设计丰富空间
03
◻️
Living Room | 客厅
∨





在这个7米开间的客厅里,设计师并没有执行其他功能选项,只布置了一组环抱式组合沙发,让出周围的空间,使得一家人可以在这个最主要的空间里自由活动,孩子甚至可以在此追逐玩闹。这是一个最让人身心放松的地方。

靠窗的位置,设置了一条木质的长休闲榻,在这个最接近自然的地方,可以闲坐、躺下,可以看书、喝茶、聊天以及欣赏美景……

◻️
Dining Room | 餐厅
∨




餐厨一体空间里,设计师将吧台和餐桌也做了一体化的定制处理,材质和造型上更加协调和统一。

◻️
Master Bedroom | 主卧
∨


到了主卧的空间,整体色调比公共区域暗了一调,胡桃木饰面的灰咖色成了这里的主色调,希望这个暗调空间可以让主人更快地进入梦乡。

在灯光设计上选用了一些暖色的线性照明,提供了柔和的照明环境,又彰显了现代的科技感。
◻️
Other Space | 其他区域
∨

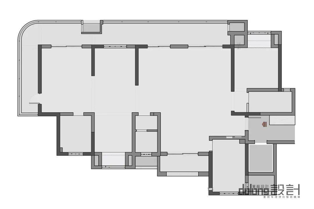
◻️
Plane Scheme | 平面方案
∨

