如何让我遇见你,在我最美丽的时刻。
——席慕蓉【台湾】

H·O·M·E
项目名称:冷玉微澜
项目地址:景枫你山
项目面积:350平
户型结构:联排别墅 3+B1
设计风格:东方轻奢
合作模式:半包
主要材料:木饰面,艺术涂料,不锈钢,复合地板
竣工时间:2020/8
摄影:邱文锏

盛夏时节,一对80后业主辗转找到我们,并委托我们为其未来的新居做一个温馨精致的设计。男业主是一位年轻有为的企业家,女业主是一位心地善良的宠物医生。他们都崇尚舒适、有品质的生活方式,注重空间的功能与设计。
更重要的是,业主的儿子即将上小学,他们想要使儿子过得舒适和幸福,同时又想给儿子传递一种稳重、简约的品质。于是我们抛开束缚,回归空间设计的本质,致力于打造一个温馨精致又简单舒适的家。

别墅整体采用木色、灰色修饰空间,以此保持最主要的质朴特征。对于一个孩子来说,拥有一个质朴、真诚的心灵特别重要。它会让孩子平易近人,进而交到许多朋友,利于孩子的身心成长。
而在一些醒目的地方,冷玉色像孔雀开屏一样,吸引周围人的钦羡目光。它是高贵却低调的色彩,象征着不同,象征着天命不凡,这种点睛之笔是对居住空间审美的升华。
即便是简单的生活空间,只要做好布局上、细节上的彼此互动,同样能打造温馨舒适的氛围。所以在设计中就出现了餐厨互动,沙发座椅的颜色互动,室内与室外的互动等等,而这些又促进了一家三口的亲情互动。这便是回归了设计的本质!




左右滑动查看更多图片
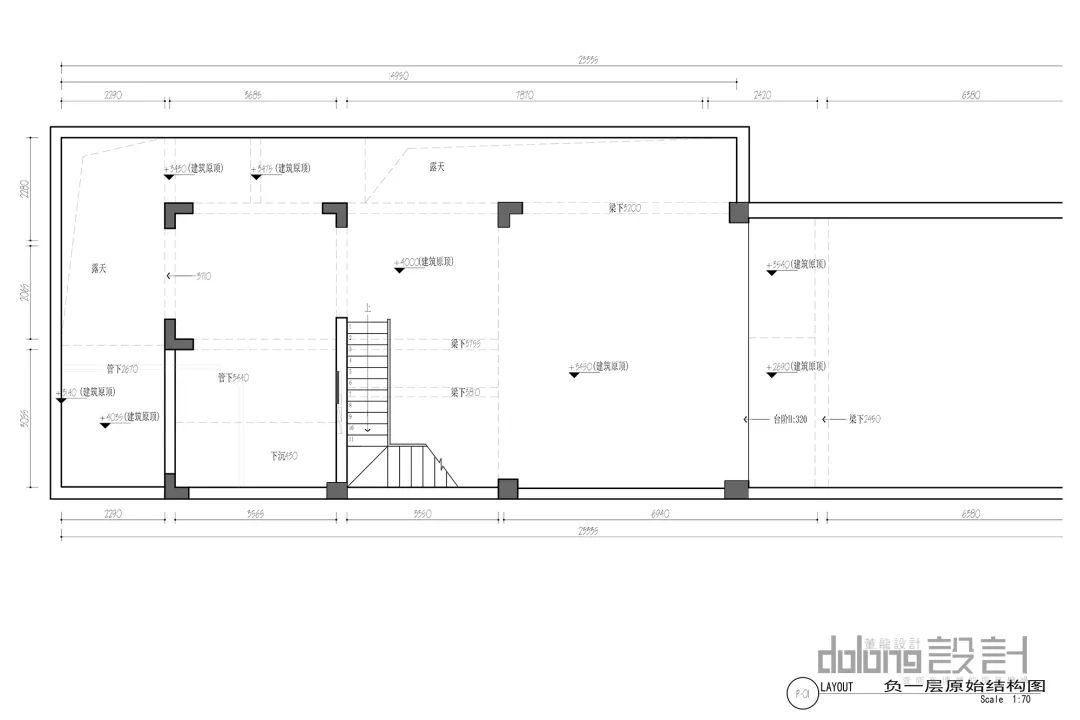
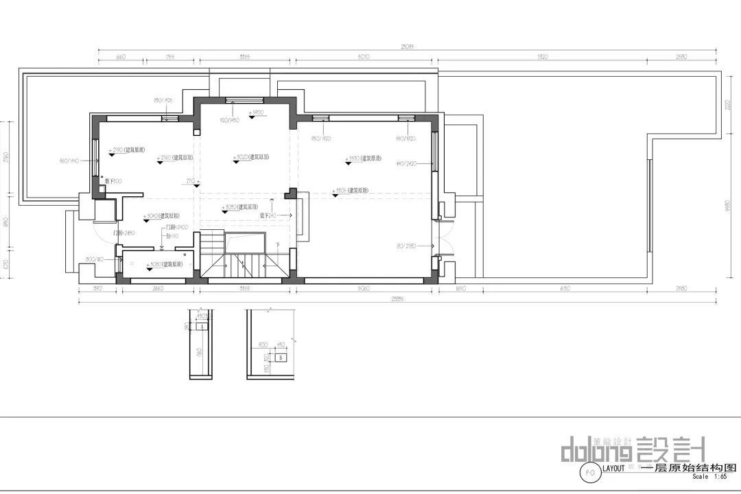
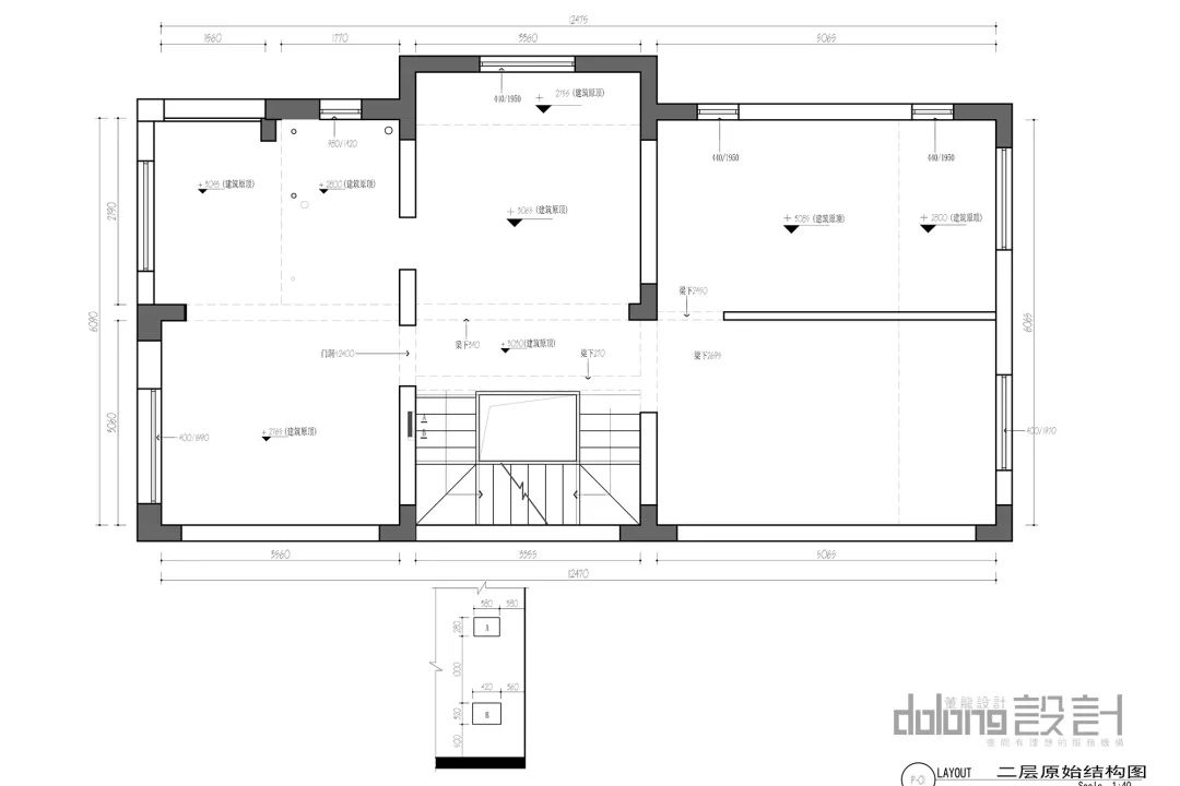
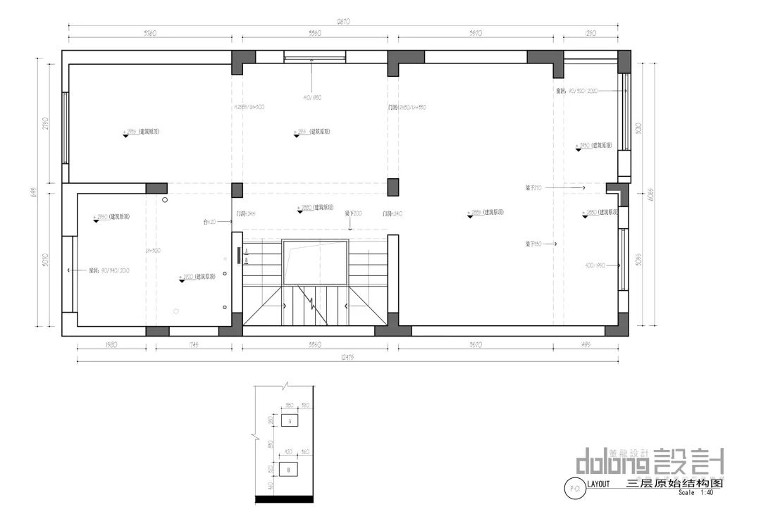
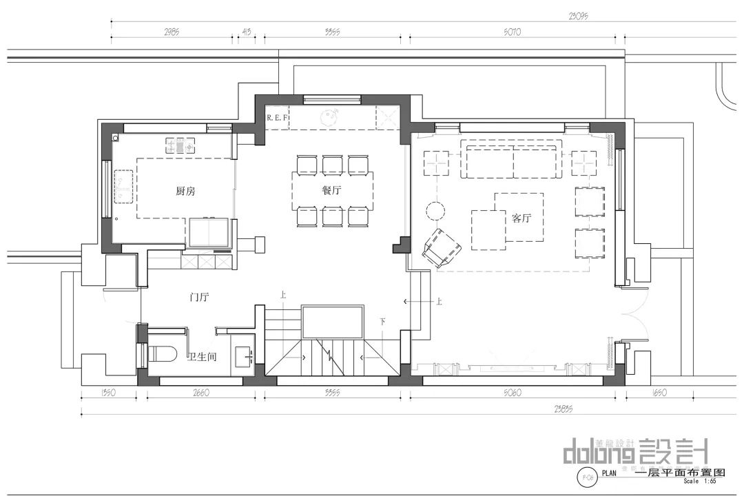
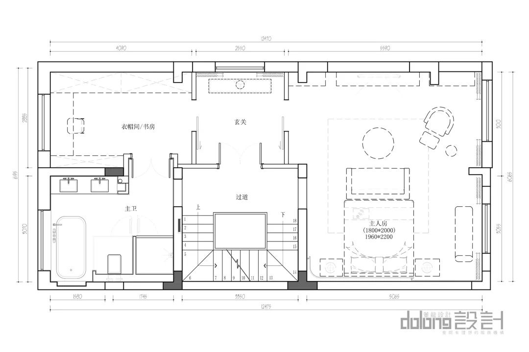
▲原始户型图 VS 平面布置图▼




左右滑动查看更多图片
原户型厨房空间较大,而餐饮空间较小。设计师在满足厨房功能的前提下,压缩了厨房空间。利用原建筑结构,设置假柱,围合了餐饮空间,满足餐饮空间西厨、水吧的基本功能。在餐厅与厨房之间利用艺术灯具的过渡,区分空间,以此营造餐饮的仪式感。
三楼的玄关处设立一件有趣的艺术品
在大地上自由奔驰的骏马
身背离开深水的人鱼
这样的创意结合打破了固有的思维方式
对称的古铜玻璃移门
为隐藏在门后的卧室空间
做好神秘的美学铺垫
并把东方的历史感与现代感有机结合

冷玉色饰品似一池秋水
清风徐来,水波微澜
橙色舒适座椅为空间注入跳动的生命力
与灰色沙发组合在一起
便是业主夫妻陪伴儿子的形象比喻
阳光透过白色窗帘洒落在他们身上
这便是生活的意义


金丝桌边、白色石材桌面的茶几
简约却不失功能性
父子二人可在此对弈
一张充满质感的灰色地毯
占据绝大部分的地面空间
每当一家人坐于沙发攀谈或看电视
想象着从上方的视角向下看
他们便是地毯里的人物
上演着属于他们的《家有儿女》

围合的餐厅
整体上呈现了一个文艺的空间
木色的墙壁、颇具创意的餐椅
与讲究色香味的佳肴交相辉映

开放的厨房与餐厅肩并肩
用带有一丝神秘感的艺术区
将家人的情感紧紧联系