让光线来做设计
——贝聿铭
H·O·M·E
项目名称:参差·光影
项目地址:银城悦见山
项目面积:170㎡
户型结构:复式跃层
设计风格:现代简约
合作模式:全案托管
主要材料:志邦厨柜、科勒洁具、ABC look定制
竣工时间:2020/6/25
摄影:ingallery
本案业主性格直爽,喜欢现代简约并能彰显一定个性化的居住风格。另外,业主的孩子尚小,他们希望有一个亲子互动的空间,能够舒适地陪伴他慢慢长大。

在南京生活的这些年,我慢慢地领略到这座六朝古都的魅力。在摩登大楼上班时,她在我眼中是时尚与华美的现代都市;闲逛山河古迹时,她又把江南文化的典雅与质朴展现在我眼前。
作为一个室内设计师,我一直想把这两种气质融合进我的作品里,好让选择我的业主们,在家就可以平衡基于历史文化变化带来的美学差异,并试图使这种A+B衍生出一种C空间风格,而不仅仅是A+B。C空间风格要在保证令人感到幸福的基础上,尽可能的创造更多的舒适与趣味,而最能把空间联系起来的莫过于光线。

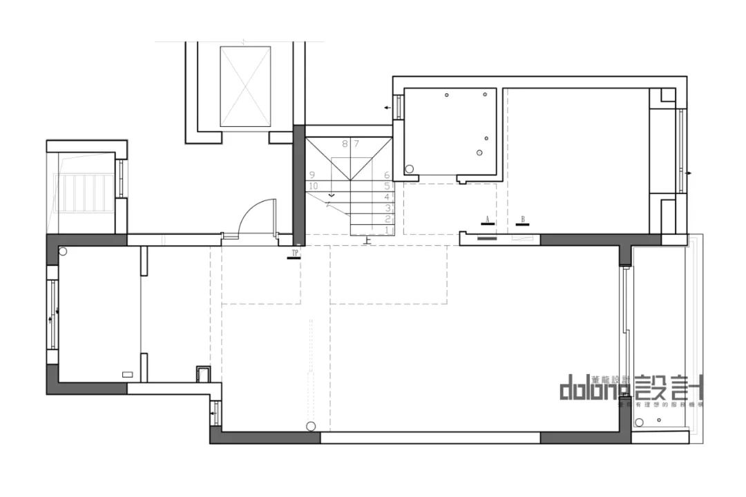
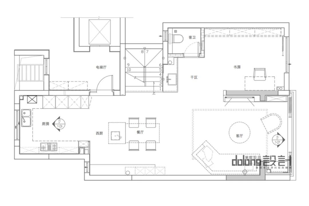
▲一层原始结构图 VS 一层平面布置图▼

本案为复式跃层。从功能层面考虑,设计师希望空间具有一定程度的开放性。开放性能增加有趣的互动,从而使不同空间的功能得以延伸。
于是一楼多余的墙体都被去除,空间之间相互贯穿,形成有机的整体。同时,可利用空间面积增大,视野也更加宽阔和通透。明亮的光线逐一扫过,使得流畅的动线一览无余。

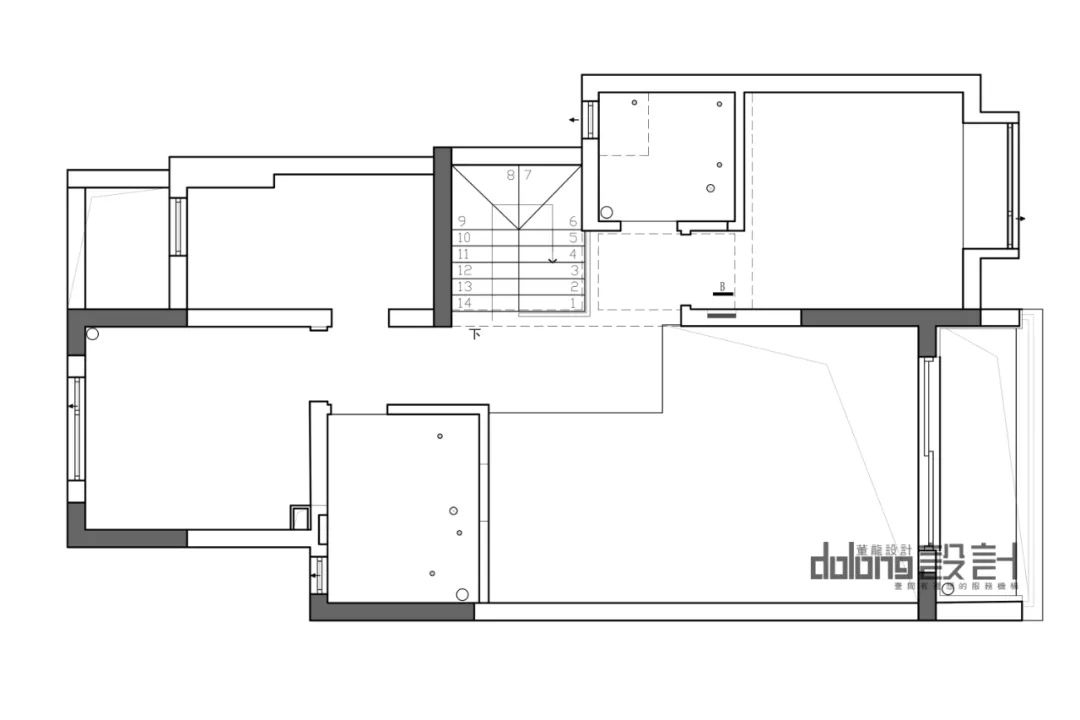
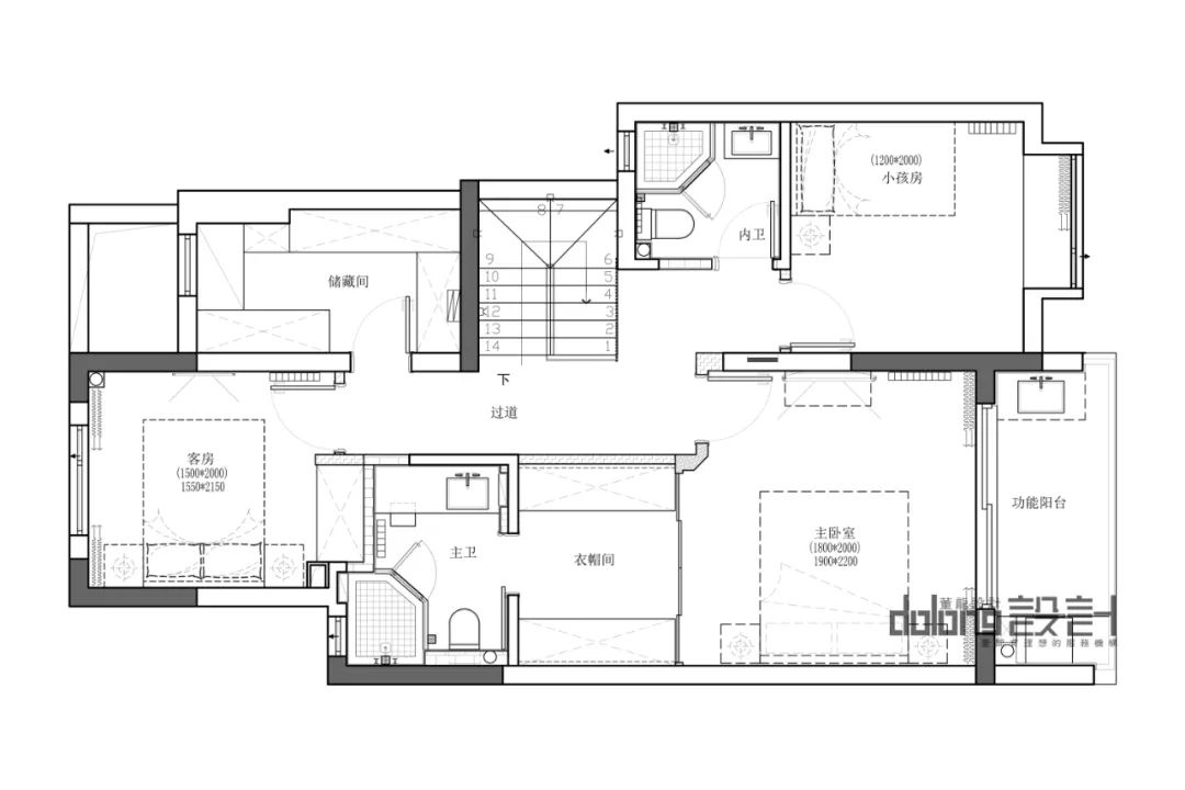
▲二层原始结构图 VS 二层平面布置图▼

二楼作为业主的休息空间,与一楼动静分离。在这样一个静谧的空间内,业主可以肆意地感受时间的强大生命力。
灰咖双饰面板与纯色乳胶漆的搭配运用
使得空间整体纯粹而安静
圆形大理石墙面装饰为空间注入
更多微妙的视觉感知力
客厅背景利落的灰咖线条与白色相互中和
实现了气场上的平衡
阳台小景的设计使空间目之所及
皆精致而内涵丰富
透过空间,感受生活
在其中追求细腻的层次变化


◻️
Kitchen space| 餐厨
∨
餐厅、厨房、岛台呈现为
打开式、多功能、一体化的设计
用餐氛围因此也多了分自由轻松


餐桌边的储物柜设计了悬空柜
白色石材饰面与其他空间呼应
使其兼具储物与展示功能
空间凸显灵动、轻盈
规整的线条与立体结构
给家增添了诸多层次感与艺术气息




◻️
Bedroom| 卧室
∨
微风轻拨,薄纱浮动
流光透过纱帘洒落床前
波光行影,闪动丝丝惬意

主卧选用女主人心仪的灰色墙纸及深灰色系床品
其蕴含沉稳内敛的安全感
为空间营造舒适且静谧的睡眠环境
业主对储物需求很高
衣帽间左右两侧的衣柜
以及专门设计的储物间
充分