黑:将光线纯粹的色彩直观地呈现。
白:将岁月无限的温柔完美地映衬。
灰:将事物真切的轮廓形象地勾勒。
——

H·O·M·E
项目名称:(溧阳)宋都悦宸府
空间性质:挑高/218平
设计风格:现代简约
设计机构:DoLong董龍设计
施工单位:大品大工程
摄影:Ingallery





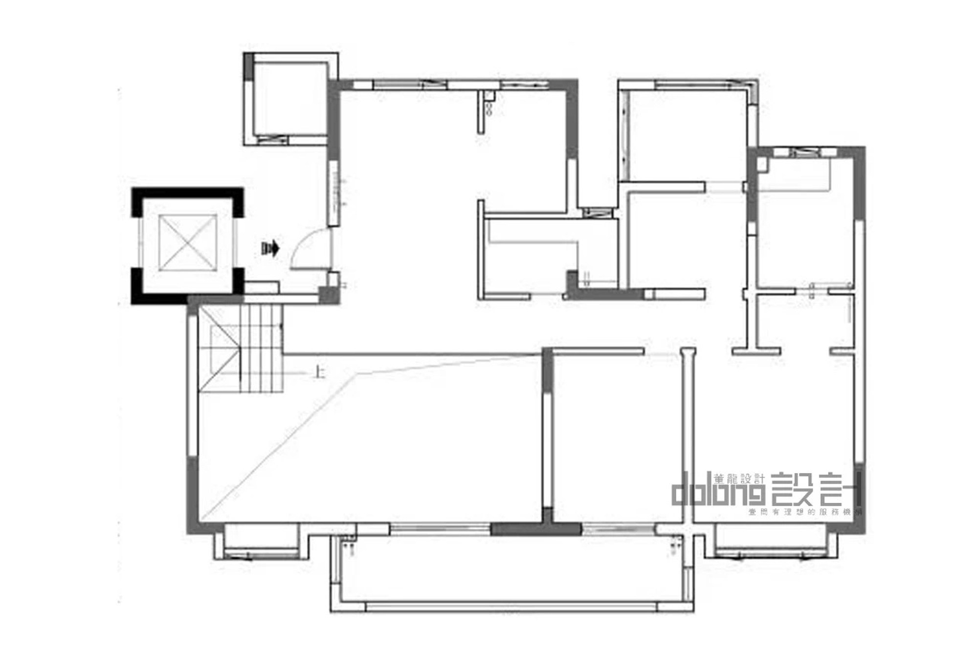
此次设计项目是坐落在溧阳市宋都悦宸府的跃层空间,房主人喜欢黑白灰的纯粹简约,于是设计师采用最常见的黑白灰色,经过严密创新的布局、合理的结构改造、克服设计难度和施工难度,最终为业主呈现一个现代简约风格的舒适居所。




结构上,设计师调整了部分原始空间划分。原本的餐厅空间面积相对来说比较狭窄,于是设计师将其替换为西厨;原客厅面积非常充裕,便将餐厅立于沙发之后。这样一来,客餐厅和西厨的相互贯穿,给业主营造了一个明亮开阔、简约大气的开放式空间!
◻️
Living Room | 客厅
∨

本案采用大胆的现代主义设计。深色艺术漆和岩板等厚重的色调通过深咖色木材和轻盈的线条以及绿植加以柔化。

设计讲求视觉穿透,以及室内外景观呼应,让人和自然建立起亲密的联系。


在一楼阳台,设计师还专门为房主人做了定制沙发。坐于此,可纵情沐浴阳光,可近距离观赏风雨!


本案最大的难点,同时也是最大的亮点为电视背景墙与楼梯一体化的设计!悬空电视背景墙和楼梯结合对结构要求比较高,设计师特意请专业结构师现场反复核算,最后确定了方案。

施工过程中,设计师与岩板以及钢架焊制人员反复沟通工艺细节,确保准确无误,最终顺利完成!


整体空间的黑白,运用深咖啡色来调剂空间的色度。



餐厅立于沙发之后,与客厅相互借景,甚至相互融合,让生活更加趋向整体。



入户门映入眼帘的是深色艺术漆,与岛台以及墙面装饰画形成强烈对比,凸显业主的品味与格调。


◻️
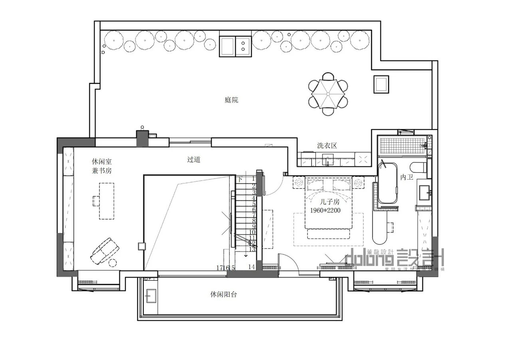
Study | 书房
∨


房主人想要一个宽敞的现代书房,适合读书办公两用。于是设计师就在餐厅的上层空间做了一个开放式的现浇书房,站在书房前侧,可俯视客厅,增加了一个与家人互动的方式。


◻️
Master Bedroom | 主卧