我的宝贝宝贝,给你一点甜甜,让你今夜很好眠——《宝贝》

H·O·M·E
项目名称:弦·娴
项目地址:五矿澜悦栖原
项目面积:145㎡
户型结构:上叠
设计风格:美式
合作模式:全案托管
主要材料:环美家居 、LD瓷砖、玫瑰岛淋浴房
竣工时间:2020/10/23
摄影:ingallery
业主说:春夏秋冬皆是爱你的季节。01

我希望我们的家,拥有不可复制的美,春的蓬勃,夏的繁华,秋的诗意,冬的圣洁。我希望我们的家,最是书香能致远,浸润心灵。我更希望我们的家,每一个角落,都写满对女儿的爱。v
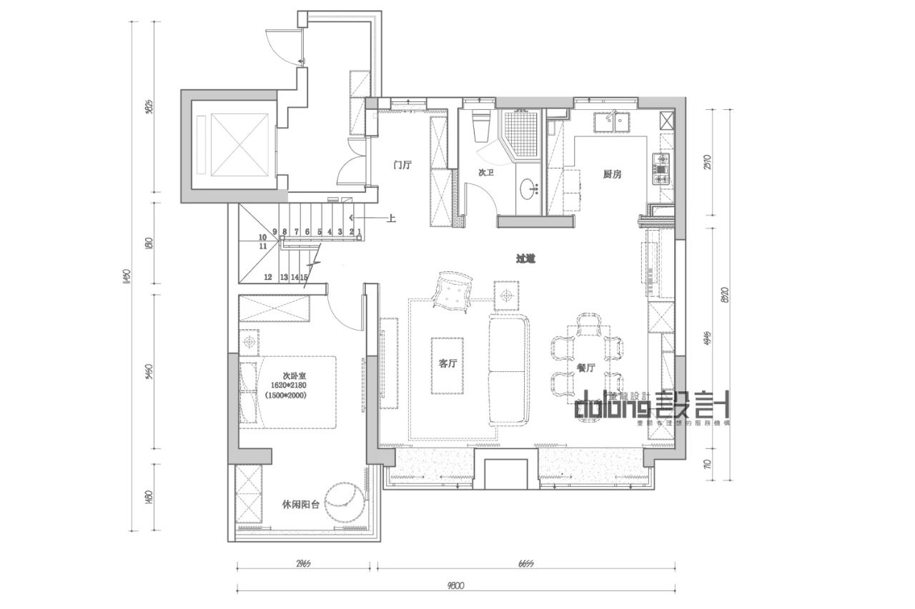
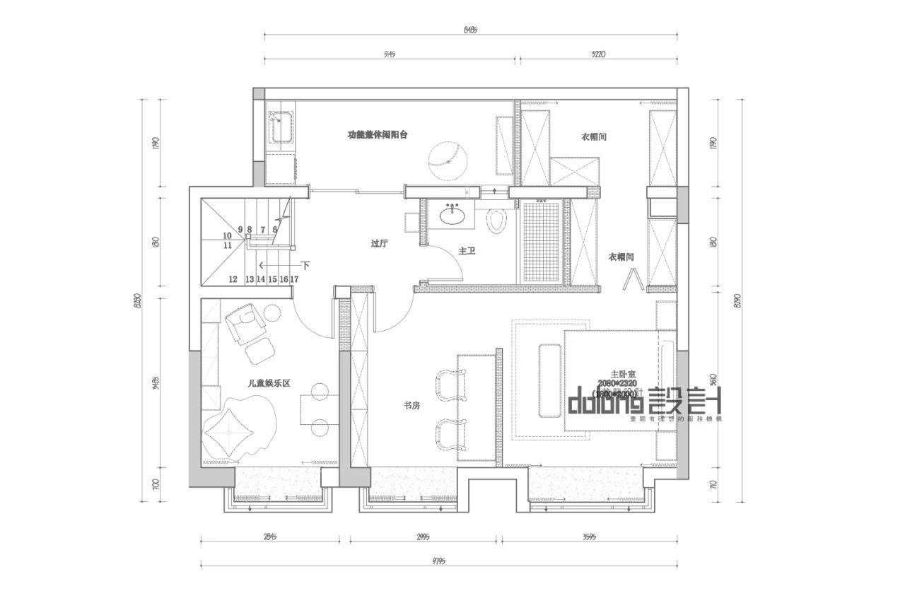
空间说:取长补短,增大利用率。02

▲一层原始结构图 VS 一层平面布置图▼

▲二层原始结构图 VS 二层平面布置图▼


客厅上方原本为挑空空间,浇筑后作主卧室使用。依傍卧室的储物空间较小,但北阳台面积非常大,所以将部分阳台空间划作主卧室的衣帽间,以满足业主的储物需求。
新家说:给家人更多的选择。03
◻️ Living Room|客厅∨

清晨第一缕金色阳光透过大飘窗照射在米白色经典拉扣式沙发、T型腿流光金涂装的茶几、电视柜、黑胡桃木地板上,开启一天的美好生活。主沙发靠枕的选择,借鉴了“你的领带是我裙子的颜色”,与单椅相得益彰。

墨绿色单人椅,丝绒搭配精细的框架,飘中带稳,是业主心目中“轻”奢的写照。
◻️
Dining Room | 餐厅
∨

餐厅做了补充西厨的设计,方便平时甜品烘焙。红酒架和马克杯收纳柜是女业主的心头好,一瓶红酒一个城市杯,记录一家人走过的每一座城。
◻️
Bedroom| 卧室
∨

以主卧为中心,衣帽间和书房分列两侧。独爱美标床流畅大气的亲切感兼并韧性十足的依靠感,冰川灰的色调和软包床头的设计既符合整体色系又不失温暖。

五斗柜侧重于不同物品的分类摆放,特别地为女儿设置一层收纳鞋子的空间,弥补女业主没有找到心仪儿童鞋柜的遗憾。装饰品的选择,无疑体现了业主对于香味的小偏执,香薰摆台和精致蜡烛,还原这一家人生活故事里深藏的味道。
女业主的母上大人是一位讲究生活品质的人。她的房间、阳台和起居室连通,浪漫而温暖,亦如午后阳光一样令人舒服。仿古棕、孔雀绿以及浅金暗纹的碰撞和点缀,融入灵动跳跃的线条装饰,整体既协调又富有变化,呈现出无限的空间延续性。
纯羊毛轻奢地毯和高背单椅作为点睛之笔,营造出婆孙“慢慢聊”的温馨与诗意。

对女儿的房间用尽心思,却仅以软装的形式呈现,只愿给女儿留下足够多的选择,让这间屋子成为The one you prefer to be。定制壁画,源于那首清声弹唱的《宝贝》。“我的宝贝宝贝,给你一点甜甜,让你今夜很好眠。”灰色系的甜甜,和谐而有腔调。
窗帘部分,梦幻紫佐以珍珠,生活如细线,女儿亦如珍珠,珍珠串联细线,岁月人生便成为一条温润圆融的项链。Papahug的饰品,凝结了初为人母人父所有诚挚的祝福,愿女儿在爱的拥抱下健康快乐地成长。
◻️
Kitchen | 厨房
∨

落落大方的烹饪空间,每个细节都做到便利与易操作,美味佳肴,信手拈来。要让业主一家在品尝美食的欢声笑语中享受生活。
◻️
Stairs | 楼梯
∨
悬于楼道间的艺术画,似描绘浪漫且奔放的白浪海滩,又似一圈一圈见证生命的年轮,把想象放飞,用艺术点亮生活的无限价值。
