
项目名称丨 「温·愉」
空间性质丨 平层
项目位置丨 万科·金域缇香
项目面积丨 195㎡
设计风格 | 现代简约
设计机构 | DoLong董龍设计
施工单位 | 大品大工程
阳光倚着白墙
细细记录着过往与现在

阿兰·德波顿说:“我们对家的热爱,反过来亦是承认我们的个性绝非自我决定的,我们在心理意义上需要一处避难所的空间,来补偿内心的脆弱和支持我们的精神状态。”在他的描述里,家是一种“精神场地”。




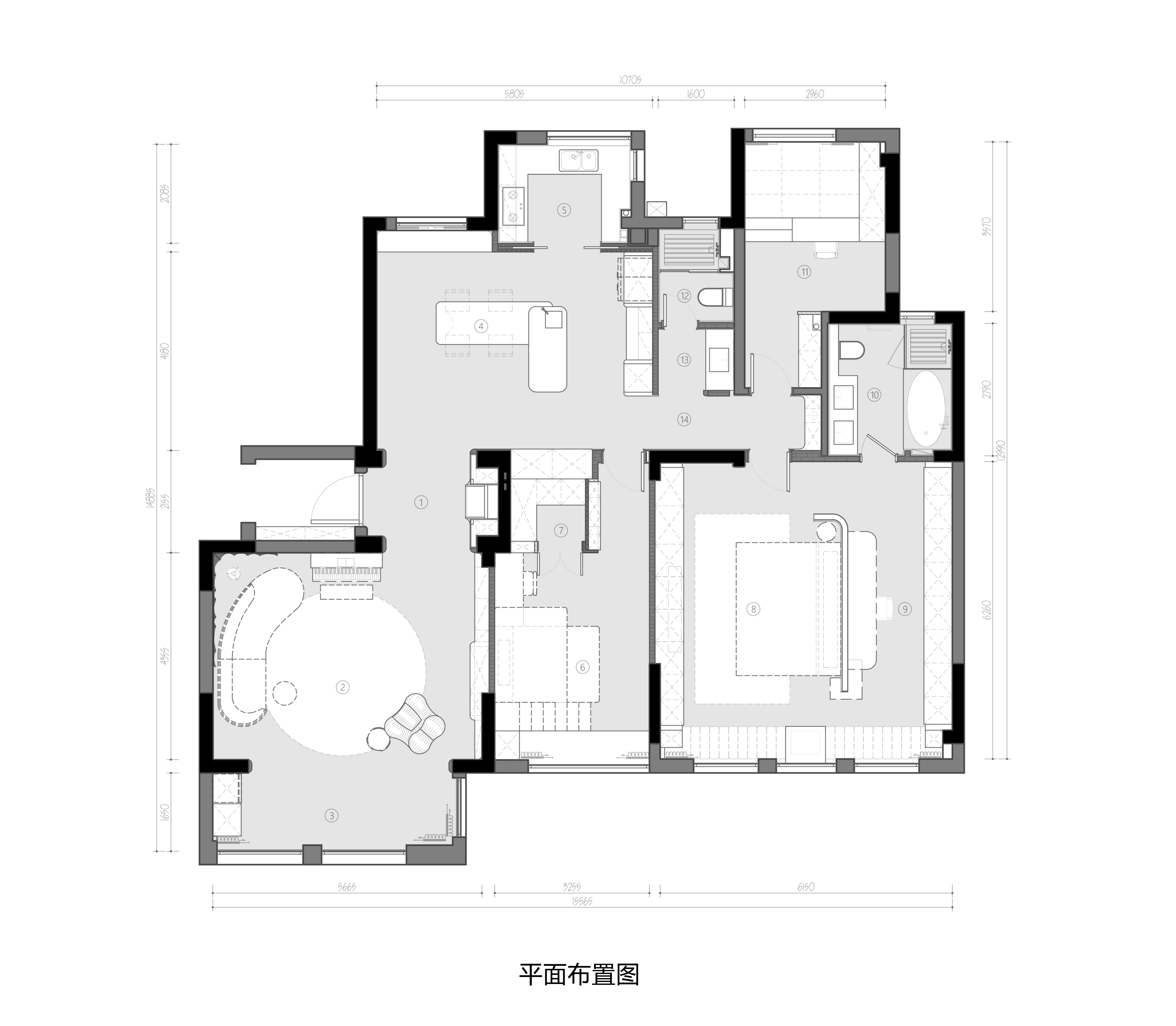
项目在原有的旧房基础上进行拆改和布局改动,硬装上借用浅色系和圆弧的组合,重新演绎了人与空间情绪的关系,塑造居家的温馨舒适与放松自如,创造人、空间、自然三者之间的连接。




02 餐厨与玄关
空间中的亮色点缀和谐切入
浪漫缱绻的生活画面自如舒展

柔软而坚韧的力量随着阳光潜入,与室内悄然置换氛围。温润细腻的空间线条与家居饰品在室内融于一体,生命的柔软温和藏匿于日常的点点滴滴,在不经意中隐现于人前。



以功能与需求展开空间的表达,重新排布餐厨区域的表现形式,矫正其形态以贴合家庭的使用需求。开阔的用餐区让情感松弛,顶面弧线赋予空间绵延的呼吸感,生命的律动随着隐线在室内蔓延交融。




关于家的温馨与欢愉,呈现于空间的贯通和遮掩变幻之中,剥去外界繁杂,居家的曼妙与柔情在空间的氤氲下缓缓升温。



03 起居室
独立于一方居所中
感受季节变换带来的冬温夏清

改变起居室储物空间排布,去除原衣帽间得以令主卧的互动更为亲密直接。卧室内收纳空间重新排列组合,整面排柜替代原有收纳区,开放式空间带着些许围而不合,在功能与美学间达成对生活的多重追求。





充满童真的秘密藏于每一步阶梯中,色彩渲染着空间氛围,与室内流动的气息和谐呼应。悬挑的桌面轻盈灵动,恰到好处的高度源自对生活细节的考量。


在形体中运用弧形元素来柔化空间结构,打造孩子心中的期待已久的乐园,居者的空间诉求与当下氛围被妥善安排,构成空间生动且可捉摸的存在。


