采菊东篱下,悠然见南山
——陶渊明

H·O·M·E
项目名称:绿城云栖玫瑰园-《云栖》
空间性质:175平米
设计机构:DoLong董龍设计
施工单位:大品大工程
服务模式:全案托管
全案标准:8000元/平
摄影:Ingallery


本案坐落于南京河西中心区侧翼的绿城云栖玫瑰园,园区比邻闹市,却又相对独立,以安静、克制、悠然的心态,继续探寻一种于闹市中闲适生活的可能性。

设计者紧紧围绕房主人的居住需求,放大建筑内在贯穿的结构优势,以层次分明的浅色作基础、温润的木元素穿插其中为设计理念,采用精致入微的施工工艺和精心挑选的优质材质,打造一个通透、开阔、亦实亦虚的悠然生活空间。
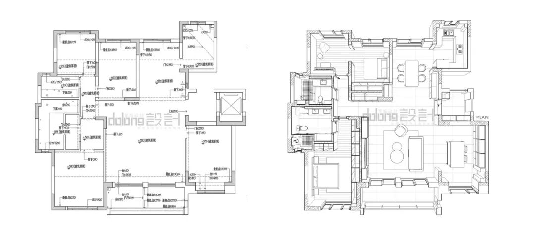
原房型有4个房间,起初房主人打算把朝南2个房间做主卧和女儿房。但设计师建议把客厅与朝南次卧打通,打造一个通透的大客厅,开放式书房嵌套在其中。这样设计主要是考虑到女儿常年留学在外,若是把她的卧室放在南侧,客观上闲置了空间。改造后的公区尽显开阔与大气,还使光线更加通透明亮。

客厅沙发休息区以书房为背景,彼此联动,相互借景。餐厅又通过入户门与客厅对称落于两侧。浅灰色瓷砖向四周徐徐延伸,倒映公区空间的所有,给人一种蜻蜓点水的轻盈感受。

巨大的玻璃落地窗配以纯白色窗帘,将光线过滤,只吸纳足够的柔光,沿着流畅的动线,穿透不同空间。

深色沙发呈一定弧度落于客厅中央,将家人之间的温馨聚拢,沙发的质感和地板的光滑呈现多元化的触感。电视背景墙采用浅木色木饰面,均匀切缝使得整面墙呈现匀称的几何美。黑色哑光不锈钢包边,电视机嵌入其中,下方采用更深层次的灰木,整个背景墙一气呵成,彰显简约大方的气质。
由公区向休息区移动时,采用了似层峦叠嶂的木质包裹面,视觉上形成诗韵的律动性和延伸感。

◻️
Study | 书房
∨

木收纳柜作为书房背景,与电视背景墙相似,彼此遥相呼应。浅色书柜嵌入一横一竖两条红色线条,为空间增添抓人眼球的视觉美,同时给书房里读书或办公的房主人传递红色具有的温暖之感。


颇具艺术色彩的吊灯,悬于一张简单却精致的书桌上方,除此之外,书房中央再无别物。如水一般的环境,为房主人打造一种沉浸式的阅读体验。


◻️
Dining Room | 餐厅
∨

餐厅同样集诸多简约元素为一身,一目了然,亭亭玉立。简约的设计处处体现用餐的包容性和灵活度。


较多的深浅色搭配衬托着空间的多样性。餐厅总体非常质朴清爽,石材硬朗,木质温润,把用餐还给用餐本身。